本文
総社吉備路文化館 利用案内

総社吉備路文化館は、収蔵機能と展示室をもつ館として、平成26年4月にオープンしました
館内には、備中国分寺や鬼ノ城といったこの地域の史跡について説明したパネル展示をはじめ、かな書家で文化勲章受章者の高木聖鶴氏の作品展示室や企画展や作品発表が行われる展示室があります。
当館主催の企画展については、企画展のページをご覧ください。
開館時間/午前9時00分から午後5時00分まで。午後4時30分までに入館してください
休館日/月曜日、年末年始(12月29日から1月3日まで)
入館料/無料(企画展は有料の場合もあります)
館内案内
1階
※トイレは1階にあります。

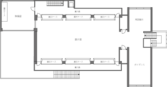
2階

中央部分が展示室です。一般向けの貸し出しも行っています。利用を希望する場合は、事前に申請してください。
ガイダンスコーナー
総社市内の文化財や、備中国分寺を含む吉備路風土記の丘の説明パネルを展示しています。
常設展示 高木聖鶴作品展示室
かな書家で文化勲章受章者の故高木聖鶴氏の作品を、随時展示替えを行いながら4~5点程度公開しています。
展示室

約175平方メートルの展示室です。当館主催の企画展や、貸し出し利用による一般の方の作品展示を随時行っています。
ガラス張りの展示ケースが6つあります。
