トイレカーの貸出しについて
災害時に最も困るのは、清潔で安心して使えるトイレが足りないことです
総社市は、誰もが安心して過ごせる避難所を目指し、トイレカーを導入しました
災害の発生していない平常時は、市内のイベント等に貸出しを行います

貸出の対象者
次のいずれかに該当する営利を目的としないイベント等
① 市が主催して行うイベント等
② 総社市と共催、後援を受けて行うイベント等
③ 防災啓発のために行うイベント等
④ その他特に市長が認めたイベント等
例)市と共催、後援を受けて行うスポーツ大会、自治会が行う防災訓練 など
貸出期間
5日以内(事業に使用する日、貸出し及び返却に要する日数を含む)
※ 貸出し、返却は原則月曜から金曜(祝日を除く)の開庁日の午前9時から午後4時の間で行う
借りる方法
<総社市トイレカーの貸出手順>
※ 原則、次の手順以外の貸出しはできませんので、手順にしたがって手続きをお願いします

<注意事項>
・申請者は、使用開始日の2週間前までにイベント担当部署へトイレカー貸出要求書を提出してください
・トイレカーの移動についてはイベント担当部署の職員の運転により行います
※ イベント会場内であっても申請者にてトイレカーの移動はできません
設置場所を決定したうえで貸出申請を行ってください
※ トイレカーの貸出日には立会いを行い、設置場所の指示をしてください
・トイレカーに不具合・故障・破損・汚損等があった時は、イベント担当部署へ速やかにご報告ください
・その他、使用上の注意事項を確認し、「トイレカー使用マニュアル」にしたがって使用してください
・トイレカーに関する下記のお問合せや相談・質問等は、各イベントの担当部署へご
相談ください。
「トイレカーの空き状況」
「トイレカー使用申請手続きに関する相談」
「トイレカー貸出要求書の提出」
災害発生時の対応について
総社市内及び総社市外の自治体において災害が発生し、トイレカーの使用が必要となった場合は、申請者への事前の許可なく、貸出しを中止します(既に貸出し中、予約済のものも含む)
貸出関係書類
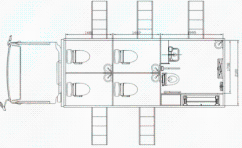
トイレカーの内装

トラックの荷台部分にトイレを5室(普通トイレ室4、多機能トイレ室1)を備えています
<トイレの装備>
洗面台、化粧鏡、紙巻、擬音装置、手すり、収納庫、電源コンセント、フック、除菌液ホルダー
※ 多機能トイレ室のみ次の装備があります
電動車いすリフター、オストメイト対応キット(汚物流し台他)、おむつ交換台、乳幼児用チェア
お問い合わせ